D43
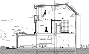
La rénovation de cette maison en intérieur d'îlot a nécessité une refonte complète des espaces intérieurs.
La position des escaliers a été revue afin d'optimiser les espaces de circulation. Des escaliers sur mesure ont été dessinés et réalisés en collaborations avec ferronnier et menuisier.
Une extension de la toiture a été réalisée afin de permettre l'aménagement d'un bureau supplémentaire.
La lumière traverse les espaces de vie grâce au réemploi des anciens vitrages en cloisons vitrée et en fenêtres intérieures.






